Reduce, reuse and recycle for a better tomorrow!
“Residential and nonresidential buildings are responsible for nearly 70% of the state's electricity use and 25% of California's greenhouse gas (GHG) emissions.”
-California Energy Commission
is our energy compliance brand under the SolidRock umberlla. As Certified Energy Analyst we serve as special consultants for residential and nonresidential construction projects. We’ve completed energy analysis work for single/multi-family, K-12, college and university projects. We are engaged by architects, engineers and public agencies to provide energy analysis for code compliance and building energy auditing services.
Building Type:
Nonresidential
City: San Francisco
Nonresidential Energy Analysis Portfolio Projects
Climate Zone: 3
Norwegian Club
Construction Type:
2-Story Existing Building
The scope of work for this project consist of providing an accessible entrance and restrooms.
Energy Building Features
Occupancy Sensors
Automatic Timer Switch
Reduced Lighting Power by 15% by using low-wattage LED
Compliance Pathway
Perscriptive: Lighting
Year Completed
2021
Code Cycle
2019
Energy Use Improvement (Reduced wattage)
15%
Building Type:
Nonresidential
City: Oakland
Climate Zone: 3
Oakland Fire Station No. 12
Construction Type:
Existing Building - 700sf modernization
The scope of work for this project consist of renovation of the dormitories and restroom areas. This project included adding new partition walls, casework, finishes and modifications of existing mechanical, electrical, plumbing, fire alerting and fire protection systems to approximately 700sf of existing space.
Energy Building Features
High-performance windows & doors
High levels of building insulation
Reduced Lighting Power
Ducted pump system with heat recovery along with four (4) zones conditioned with a ductless heat pump system and the use of radiant heat.
Compliance Pathway
Performance:
Year Completed
2019
Code Cycle
2016
Energy Use Improvement (kTDV/ft2-yr)
16.1%
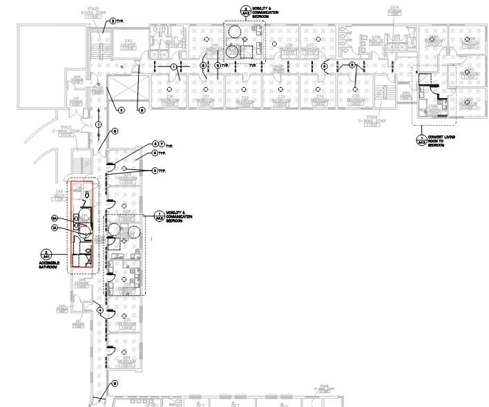
Building Type:
College/University - 4-Story Student Residence
City: Berkeley
Climate Zone: 3
UC Berkeley Stern Hall
Construction Type:
Existing Alteration
The scope of work for this project consist of a partial renovation of the women’s dormitory. This work included two mobility and communication bedrooms, multiple accommodation accessible bathrooms, cosmetic work and one student living room was converted to a bedroom.
Energy Building Features
High levels of building insulation
Low-flow plumbing fixtures
Radiant heat
Compliance Pathway
Performance
Year Completed
2020
Code Cycle
2019
Energy Use Improvement (kTDV/ft2-yr)
0.10%
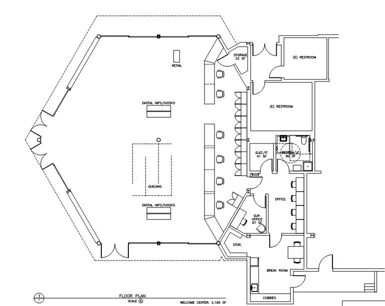
Building Type:
Nonresidential
City: Yosemite Valley
Climate Zone: 16
Yosemite Valley Welcome Center
Construction Type:
Existing Alteration
The scope of work for this project consist modeling six (6) proposed HVAC designs to determine the most efficient. Annual energy use and cost data was compared for planning purposes.
HVAC Systems Modeled
New variable refrigerant flow (VRF) HVAC system. No added insulation at walls or roof.
New Split Heat Pump HVAC System. No added insulation at the walls or roof.
Other comparative models were done adding various insulation values at the roof and walls with both the VRF and heap pump HVAC systems as variables.
Energy Use Comparison Analysis
Six proposed HVAC system designs were modeled
Year Completed
2019
Code Cycle
2016
Energy Use Improvement (kTDV/ft2-yr)
n/a
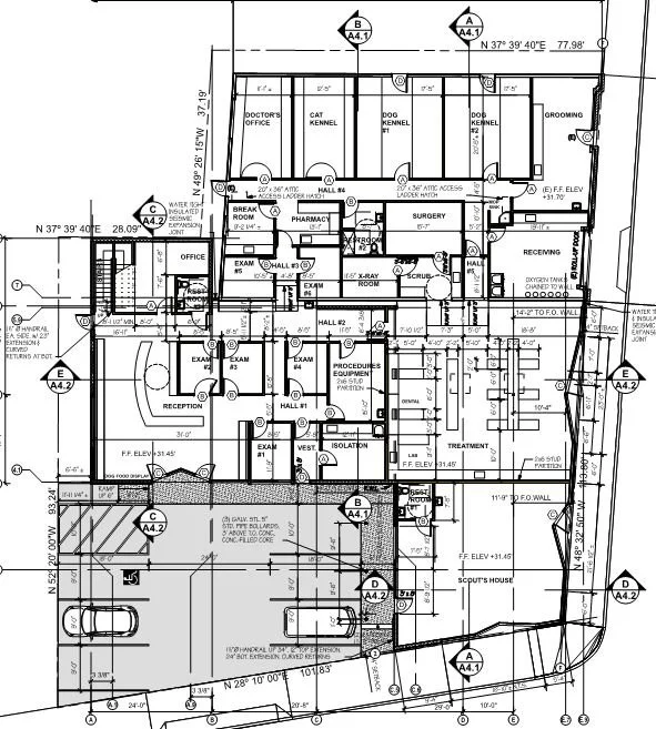
Building Type:
Nonresidential
City: Redwood City
Climate Zone: 3
Mid Peninsula Animal Hospital
Construction Type:
New Construction
The scope of work for this project consist of constructing a new animal hospital facility by renovating an existing commercial building and demolishing two adjacent storefront retail buildings to build a new addition and on-site parking.
Energy Building Features
Cool roof
High-performance windows & doors
High levels of building insulation
On-demand gas water heating
Low Lighting Power Density
Compliance Pathway
Performance
Year Completed
2017
Code Cycle
2016
Energy Use Improvement (kTDV/ft2-yr)
6.2%
“Energy efficiency is a journey, not a destination.”

